Land for Sale - 00 Commerce Boulevard, Canton, MI 48187 - 4.29 acres

4.29 acres in Wayne County, MI

00 Commerce Boulevard, Canton, MI | Lat/Lng:  42.3386, -83.4396

$343,200
4.29 ac.
09/03/2025
ACTIVE
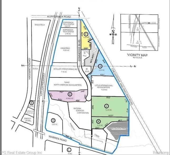
Main Listing ImageMain Listing Image

Description

Land for sale - build to suitSee second photo: Parcel "F" on drawing, shaded in yellow.. Perfect Location:A 4.29-Acre Site, is located in Koppernick Corporate Park, on I-275 north of Ford Road, Canton Township, Wayne County, MI. Koppernick Corporate Park is strategically located midway between Ann Arbor and Detroit, 13 miles from the Detroit Metropolitan Airport and is approximately 17 miles from the American Center for Mobility at Willow Run. All utilities are available, with a subdivision detention pond. Canton may offer tax relief for qualifying companies, and businesses in need of rail transportation could possibly have access with the Chesapeake and Ohio Railroad. Agent owned.

Details

CountyWayne
Zipcode48187
Property Type OneUndeveloped Land
BrokeragePG Real Estate Group Inc
Brokerage Linkhttps://www.soldbypg.com
Land Listing Agent Photo
Peter Gojcaj
PG Real Estate Group Inc
(586) 930-4714
By clicking the button, you agree to our Terms of Use and Privacy Policy.
$ image/svg+xml image/svg+xml image/svg+xml image/svg+xml image/svg+xml image/svg+xml image/svg+xml image/svg+xml image/svg+xml image/svg+xml image/svg+xml image/svg+xml image/svg+xml image/svg+xml image/svg+xml image/svg+xml image/svg+xml image/svg+xml image/svg+xml image/svg+xml image/svg+xml image/svg+xml image/svg+xml image/svg+xml image/svg+xml image/svg+xml image/svg+xml image/svg+xml image/svg+xml image/svg+xml image/svg+xml image/svg+xml image/svg+xml image/svg+xml image/svg+xml image/svg+xml image/svg+xml image/svg+xml image/svg+xml image/svg+xml image/svg+xml image/svg+xml image/svg+xml image/svg+xml image/svg+xml image/svg+xml image/svg+xml image/svg+xml image/svg+xmlimage/svg+xml image/svg+xml image/svg+xml image/svg+xml image/svg+xml image/svg+xml image/svg+xml image/svg+xml image/svg+xml image/svg+xml image/svg+xml image/svg+xml image/svg+xml image/svg+xml image/svg+xml image/svg+xml image/svg+xml image/svg+xml image/svg+xml image/svg+xml image/svg+xml image/svg+xml image/svg+xml image/svg+xml image/svg+xml $image/svg+xmlimage/svg+xmlimage/svg+xml image/svg+xml image/svg+xml