Land for Sale - 1043 Taplin Drive, Wautoma, WI 54982 - 1.99 acres

1.99 acres in Waushara County, WI

1043 Taplin Drive, Wautoma, WI | Lat/Lng:  44.0729, -89.2629

$479,000
1.99 ac.
12/10/2025
ACTIVE
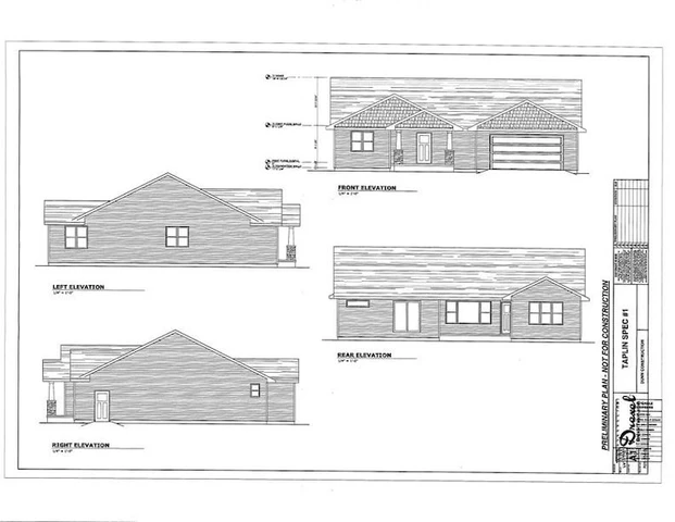
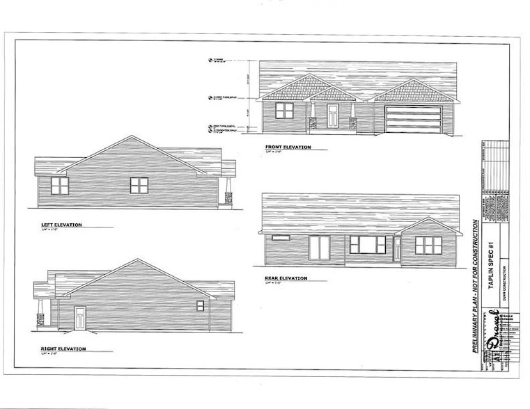
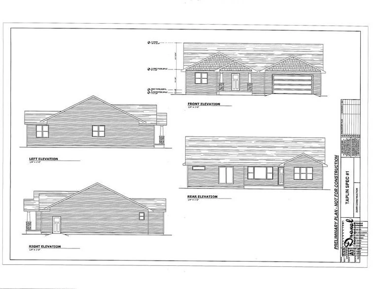
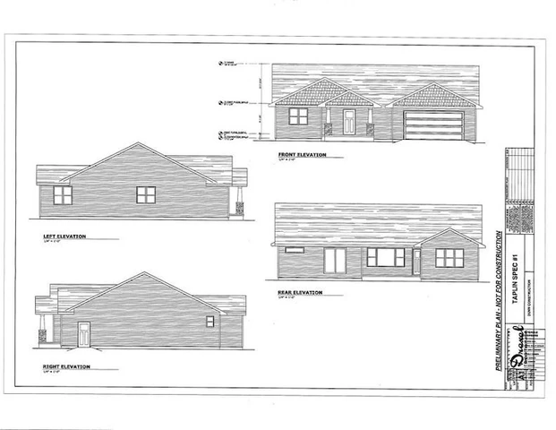
Main Listing ImageMain Listing Image

Description

New construction! 3 bed 2 bath home at 1616 sq feet on a large 1.99 acre lot. While the lesser sq footage keeps this home economical the well designed layout will make this home feel spacious and welcoming. The home will feature 2 large covered porches, LVP flooring, premium vinyl siding, forced air furnace and central AC. 30 yr rated shingles, solid core doors, alliance windows, insulated garage door and much more! Estimated completion is late Feb. Call and ask about pre build incentives. Please note that the garage placement will be opposite of how it is reflected in the build plan photos.

Details

CountyWaushara
Zipcode54982
Property Type OneResidential Property
BrokerageFirst Weber, Inc.
Brokerage Linkhttps://www.firstweber.com
Apn291-03675-1700
John Eagan
First Weber, Inc.
(920) 647-8809
By clicking the button, you agree to our Terms of Use and Privacy Policy.
$ image/svg+xml image/svg+xml image/svg+xml image/svg+xml image/svg+xml image/svg+xml image/svg+xml image/svg+xml image/svg+xml image/svg+xml image/svg+xml image/svg+xml image/svg+xml image/svg+xml image/svg+xml image/svg+xml image/svg+xml image/svg+xml image/svg+xml image/svg+xml image/svg+xml image/svg+xml image/svg+xml image/svg+xml image/svg+xml image/svg+xml image/svg+xml image/svg+xml image/svg+xml image/svg+xml image/svg+xml image/svg+xml image/svg+xml image/svg+xml image/svg+xml image/svg+xml image/svg+xml image/svg+xml image/svg+xml image/svg+xml image/svg+xml image/svg+xml image/svg+xml image/svg+xml image/svg+xml image/svg+xml image/svg+xml image/svg+xml image/svg+xmlimage/svg+xml image/svg+xml image/svg+xml image/svg+xml image/svg+xml image/svg+xml image/svg+xml image/svg+xml image/svg+xml image/svg+xml image/svg+xml image/svg+xml image/svg+xml image/svg+xml image/svg+xml image/svg+xml image/svg+xml image/svg+xml image/svg+xml image/svg+xml image/svg+xml image/svg+xml image/svg+xml image/svg+xml image/svg+xml $image/svg+xmlimage/svg+xmlimage/svg+xml image/svg+xml image/svg+xml