Land for Sale - VL Campbells Crossover, Osceola, IN 46516 - 0.36 acres

0.36 acres in St. Joseph County, IN

VL Campbells Crossover, Osceola, IN | Lat/Lng:  41.6817, -86.0630

$450,000
0.36 ac.
07/04/2025
ACTIVE
Main Listing ImageMain Listing Image

Description

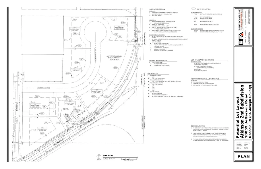
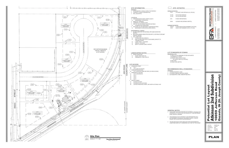
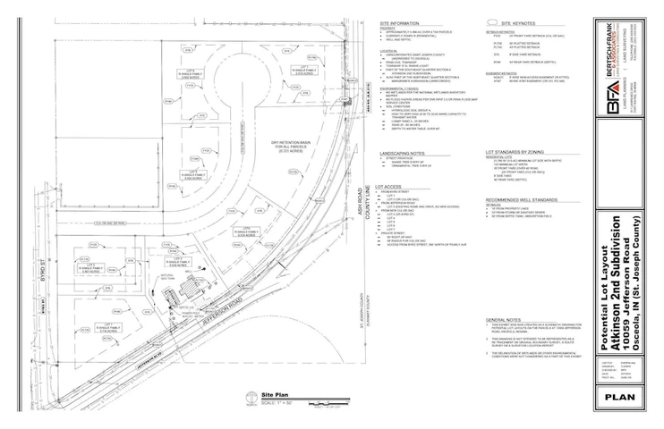
New subdivision plan in a prime location in Penn School District! The property has been surveyed and plans finalized to divide the property off of Byrd into (5) 1/2 acre lots with a retention pond. All of the permits and most of legwork have been completed. The buyer will need to bond the property and add the road/curb cuts.

Details

CountyElkhart
Zipcode46516
BrokerageeXp Realty, LLC
Brokerage Linkwww.century21abbey.com
Land Listing Agent Photo
Penny Seegers
eXp Realty, LLC
(574) 622-5801
By clicking the button, you agree to our Terms of Use and Privacy Policy.
$ image/svg+xml image/svg+xml image/svg+xml image/svg+xml image/svg+xml image/svg+xml image/svg+xml image/svg+xml image/svg+xml image/svg+xml image/svg+xml image/svg+xml image/svg+xml image/svg+xml image/svg+xml image/svg+xml image/svg+xml image/svg+xml image/svg+xml image/svg+xml image/svg+xml image/svg+xml image/svg+xml image/svg+xml image/svg+xml image/svg+xml image/svg+xml image/svg+xml image/svg+xml image/svg+xml image/svg+xml image/svg+xml image/svg+xml image/svg+xml image/svg+xml image/svg+xml image/svg+xml image/svg+xml image/svg+xml image/svg+xml image/svg+xml image/svg+xml image/svg+xml image/svg+xml image/svg+xml image/svg+xml image/svg+xml image/svg+xml image/svg+xmlimage/svg+xml image/svg+xml image/svg+xml image/svg+xml image/svg+xml image/svg+xml image/svg+xml image/svg+xml image/svg+xml image/svg+xml image/svg+xml image/svg+xml image/svg+xml image/svg+xml image/svg+xml image/svg+xml image/svg+xml image/svg+xml image/svg+xml image/svg+xml image/svg+xml image/svg+xml image/svg+xml image/svg+xml image/svg+xml $image/svg+xmlimage/svg+xmlimage/svg+xml image/svg+xml image/svg+xml