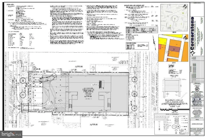
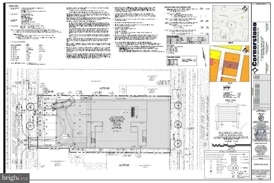
Incredible opportunity to acquire a 12,594 SQFT RM-1 zoned vacant lot in the Fairhill neighborhood of North Philadelphia, fully approved and ready for immediate development. This site comes with professionally designed plans for a 33-unit multi-family building featuring a mix of 1, 2, and 3 bedroom units, including accessible units, elevator access, roof deck, green roof, 10 off-street parking spaces, an interior bike room, and a mail/package room tailored for modern urban living. The lot includes a full package of approvals and documentation: zoning permit, street approval, post-construction stormwater plan, complete ERSA plan, and environmental testing already completed reducing risk and fast-tracking your development timeline. Ideally located near the Broad Street Line, this site offers convenient access to North Philadelphia Station, with direct transit from NRG Station to Fern Rock TC. With housing demand growing in this part of the city, this lot is positioned perfectly for a forward-thinking developer or investor ready to break ground. This is your chance to secure a fully entitled development opportunity with strong upside in one of Philly s rapidly evolving neighborhoods. Drive by and make an offer!